雙室真空箱式爐是根據處理石墨板燒結而制作,同時根據用戶需要可制作成爐體移動式,與兩只爐座配合使用,以節約能源,達到最大的使用效果。主要特點:1、采用全纖維爐狀結構,具有優良的節能性能,比同規格的磚體電阻爐節能30~38%,升溫速度提高1倍;2、爐體輕巧通過電動裝置可輕便的移開爐體,露出爐臺內膽,冷卻迅速。3、采用爐體移動,便于設備保養與維修,提高爐子壽命。4、鐘罩式電阻爐可以一罩多爐位使用,提高生產率,節約投資。5、爐膽制作成波紋狀,有效保證使用壽命和強度。 為丹陽市某特種材料材料廠生產
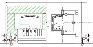
1、 移動爐體分爐襯、加熱元件:
A、 移動爐體由鋼板及型鋼焊接成外殼,材料有槽鋼、角鋼、鋼板等。
B、 爐襯采用全纖維棉壓筑成模塊,通過不銹鋼元固定于爐殼支架上。
C、 加熱元件采用波狀電阻帶通過高鋁瓷釘懸掛固定于兩側和后墻爐襯上。
2、 固定爐臺分中間爐襯、底爐襯、加熱元件、不銹鋼內膽:
A、 固定爐臺爐體采用槽鋼做機架,鋼板焊接成圍板。
B、 中間爐襯采用硅酸鋁纖維通過不銹鋼元固定于兩爐膽中間,有效減小磚式爐襯熱漲冷縮的缺點,保證使用壽命。底爐襯是有保溫磚、輕質粘土磚、重質粘土磚等砌筑而成。
C、 加熱元件采用螺旋狀電阻絲安放于爐襯溝槽內,并有擱絲磚固定。
D、 爐膽采用不銹鋼板壓制成波紋狀,保證使用強度和壽命,不會因為快速的熱漲冷縮影響壽命。
3、 爐體移動裝置:爐體移動裝置采用擺線針輪減速機,通過鏈條、鏈輪、傳動軸、軸承傳動鑄鋼走輪,達到傳動效果。限位裝置限制爐體位置,精確控制。